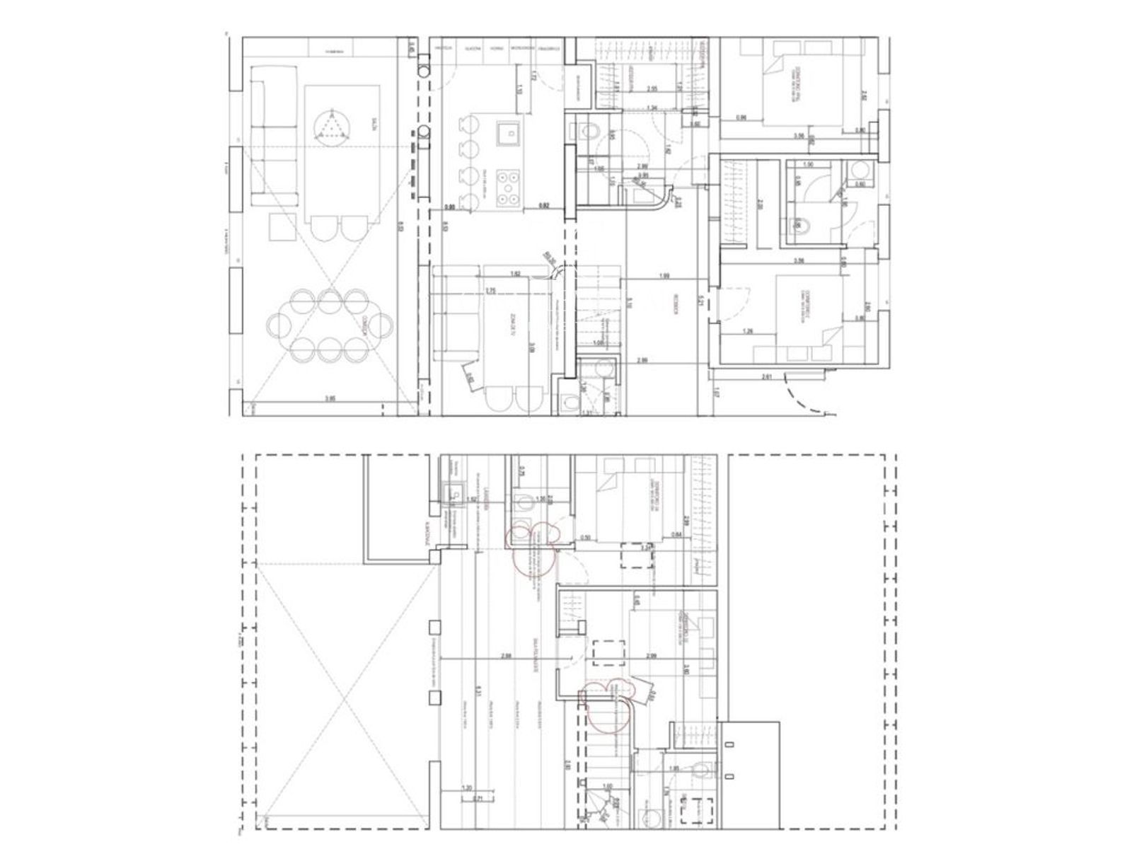
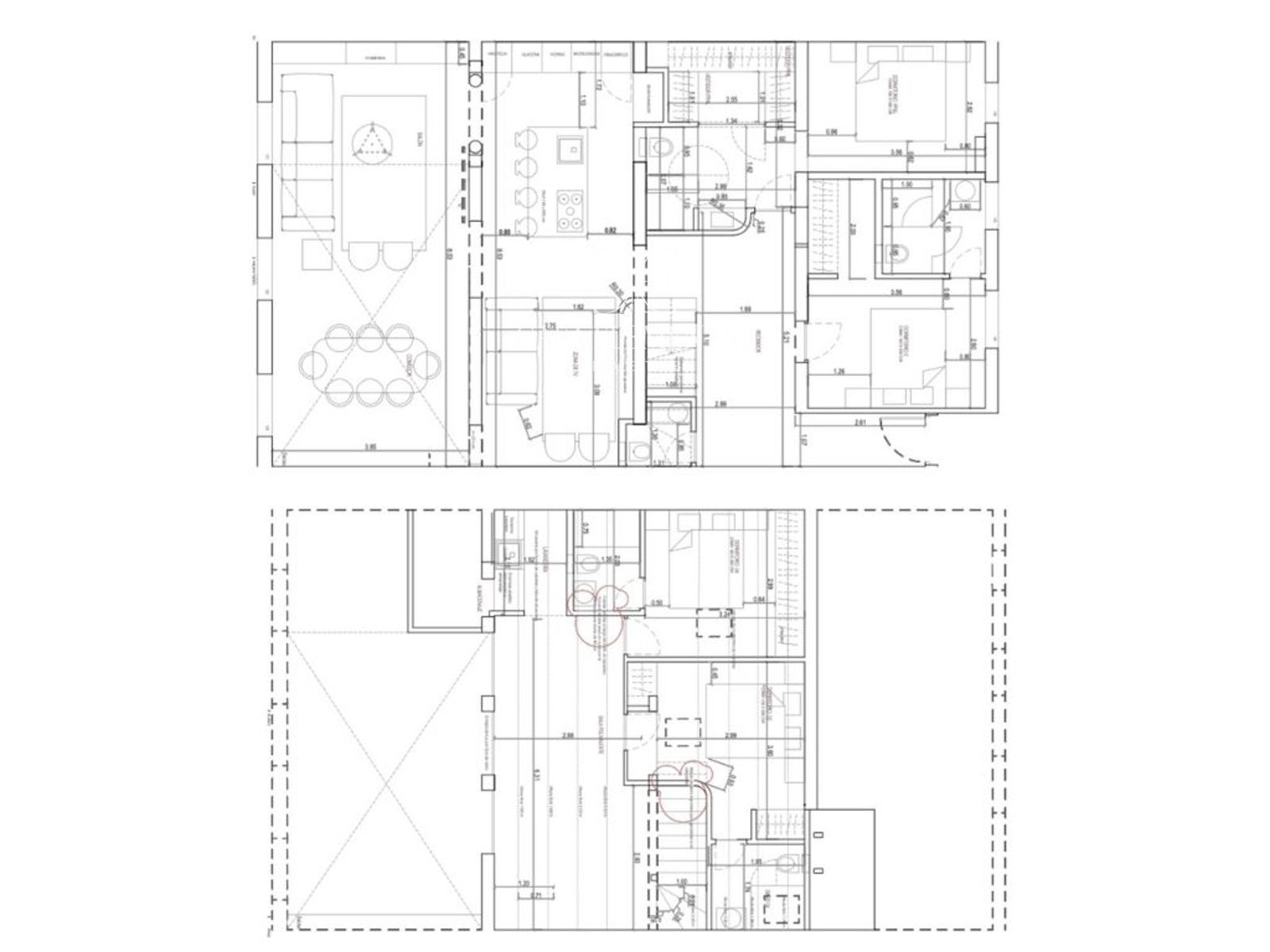
En la prestigiosa Calle Goya 51, en pleno barrio de Salamanca, se presenta este exclusivo dúplex de 195 m² ubicado en una elegante finca clásica de 1900. La vivienda ha sido cuidadosamente renovada y destaca por su amplitud, su luminosidad excepcional y una distribución pensada para ofrecer comodidad y privacidad en cada estancia.
El piso cuenta con cuatro dormitorios, todos con baño en suite, además de un aseo de cortesía. El amplio salón comedor incorpora una chimenea que aporta calidez y carácter al espacio, mientras que la cocina y el cuarto de lavandería añaden funcionalidad a la vivienda. En la planta superior, un espacio diáfano multifuncional ofrece múltiples posibilidades: zona de trabajo, área familiar o sala de ocio.
La propiedad dispone de calefacción individual y aire acondicionado, garantizando un confort óptimo durante todo el año. La finca cuenta con portero físico, un valor añadido que refuerza la seguridad y la comodidad del día a día.
Una vivienda excepcional que combina elegancia clásica, diseño contemporáneo y una ubicación inmejorable en una de las calles más codiciadas de Madrid.