Calle de Lope de Rueda I

Madrid (Ibiza)
venta: 1.050.000 €
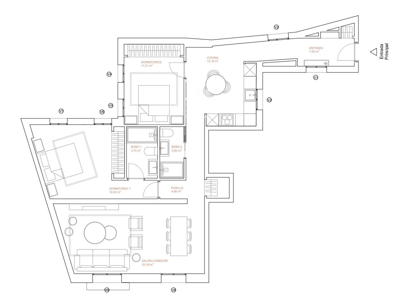
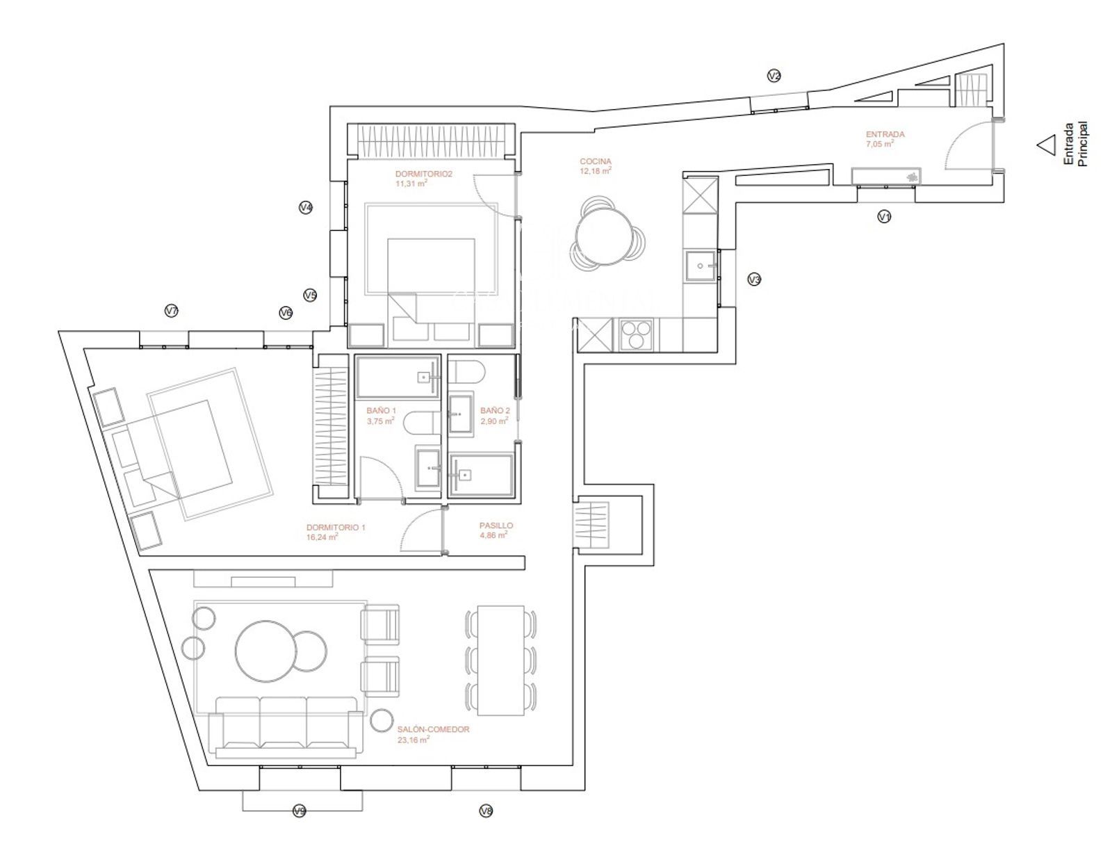
Ref.1105 2 Habitaciones 2 Baños 96 m2
Descripción

Acogedora y luminosa vivienda de 96 m², completamente reformada y amueblada con un estilo moderno y funcional. Ubicada en la quinta planta de un edificio con ascensor, ofrece amplitud y confort en cada rincón.


La distribución incluye 2 dormitorios, 2 baños completos y una cuidada selección de mobiliario que permite entrar a vivir de inmediato. Gracias a su orientación este, disfruta de abundante luz natural durante las mañanas, creando un ambiente cálido y agradable.


Situada en el barrio de Ibiza, distrito Retiro, esta propiedad goza de una ubicación inmejorable, a pocos pasos del Parque del Retiro, rodeada de restaurantes, comercios, mercados tradicionales y excelentes conexiones de transporte.


Un hogar ideal para quienes buscan comodidad, diseño y localización privilegiada en el corazón de Madrid.

Características
Precio Venta 1.050.000 €
Año de construcción 1932
Construidos 96 m2
Precio/m² 10.938
Dormitorios 2
Baños 2
Amueblado
Terraza
Estado A Estrenar
Ascensor
Calificación Energética En trámite
Vigilancia
Conserje
Vigilancia accesos
Escalas de eficiencia



Contacto
 Sí, he leído y/o acepto las Condiciones de uso y la Política de privacidad
Inmuebles similares
Madrid
Piso en venta en Madrid, con 75 m2, 2 habitaciones y 2 baños y Ascensor.
900.000 €
Ref. 1001 2 Dormitorios 2 Baños 75 m2 Superficie
Madrid
Piso en venta en Madrid, con 79 m2, 2 habitaciones y 2 baños, Trastero y Ascensor.
1.100.000 €
Ref. 1067 2 Dormitorios 2 Baños 79 m2 Superficie
Contacto
C/ Conde de Aranda 5, Bajo Izquierda 28001 – Madrid
Síguenos en: