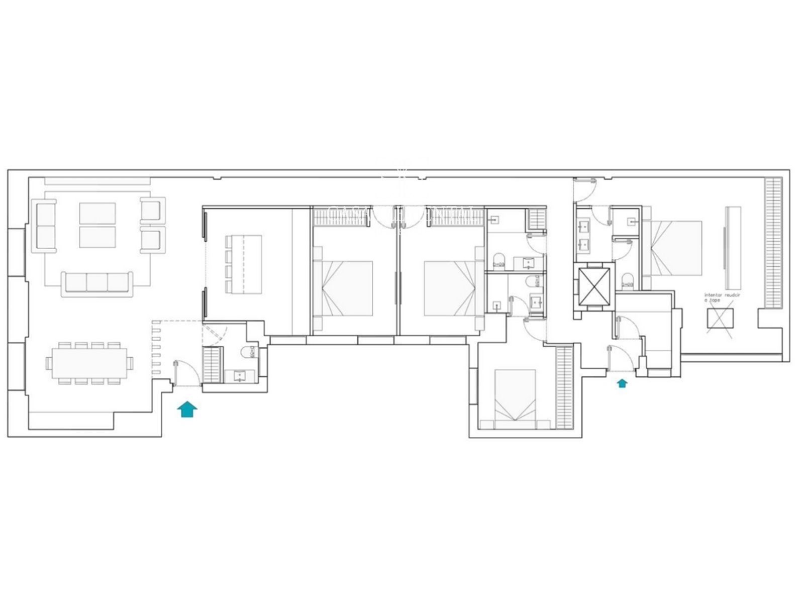
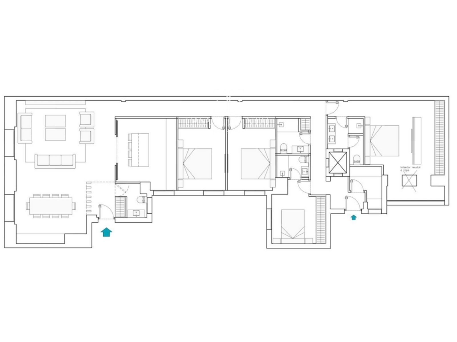
Apartment located on Modesto Lafuente Street, on the first floor of a building in the Ríos Rosas area, within the Chamberí district. The property offers a total surface of 216 m², providing a spacious and well-balanced layout, ideal for a family residence or a high-end residential project.
It currently features four bedrooms and four bathrooms, with generous living spaces that allow for a comfortable and functional distribution. Its size and location make it an excellent opportunity in one of Madrid’s most established and sought-after neighborhoods.
Price of renovated housing 2.600.000€